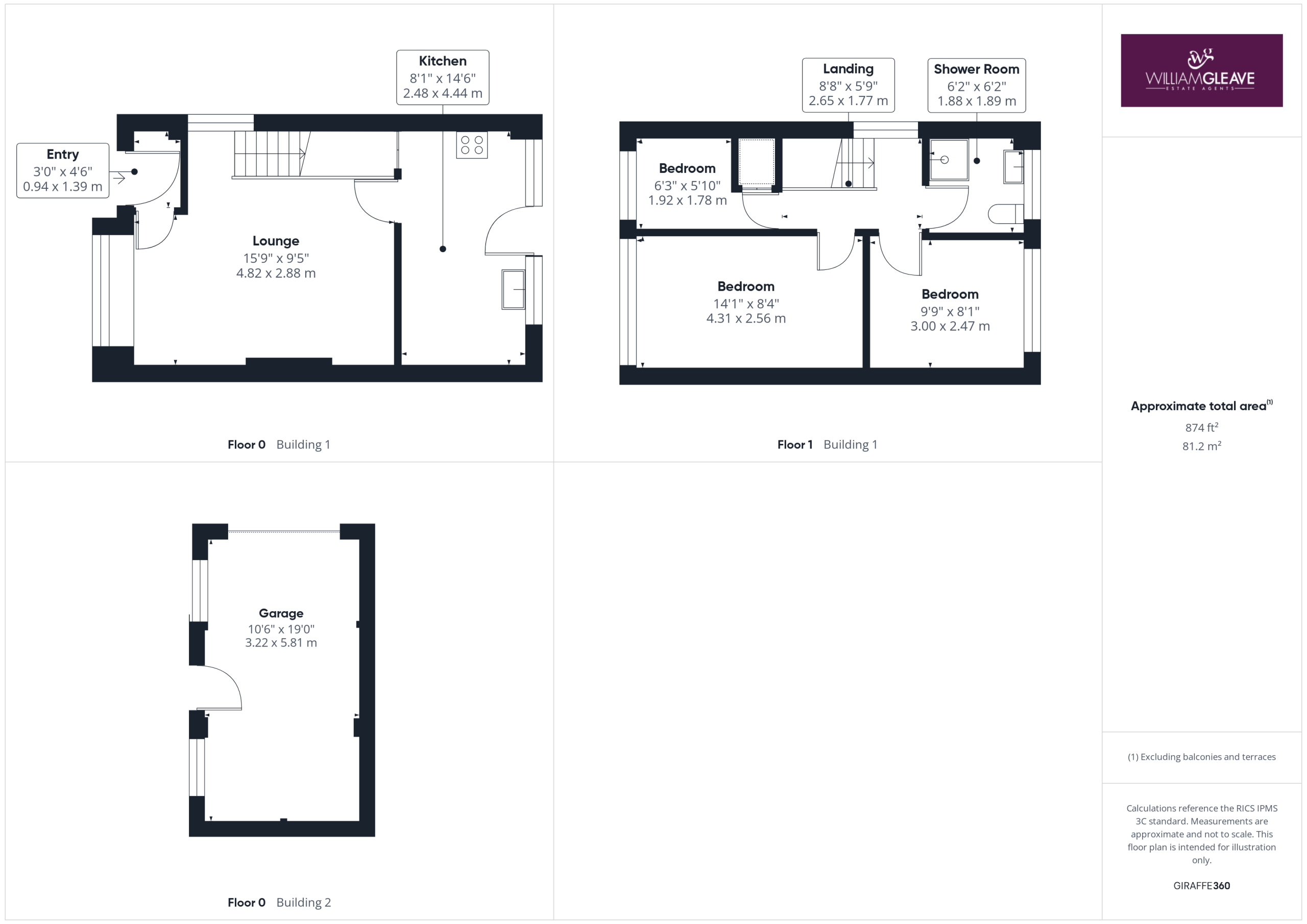
Entrance
A fitted cupboard to the side, a door leading through to the lounge, and power points with integrated USB ports.
Lounge
A well-appointed living space featuring an electric fireplace, a bow window to the front elevation, and stairs rising to the first floor with practical under-stairs storage. Further benefits include a radiator, power points with integrated USB ports, and a door leading off to the kitchen.
Kitchen
There is a combination of cream and oak wall, drawer and base units with complimentary worktop surface over complete with inset stainless-steel sink with drainer and mixer tap. There are some integrated appliances to include a four-ring electric hob, extractor fan, oven and there is space for white goods. There is tiled flooring, an under stairs storage space housing the boiler, radiator and power points. Natural light fills the space through the windows and door which opens out onto the rear garden.
First Floor Landing
Featuring a window to the side elevation allowing for natural light, loft access, and power points, with doors providing access to the bedrooms and the modern family shower room.
Bedroom One
A double bedroom with a window to the front elevation, radiator and power points.
Bedroom Two
There is a window to the rear elevation, radiator and power points.
Bedroom Three
There is a window to the front elevation, a storage cupboard to the side complete with a shelf, radiator and power points.
Shower Room
A stylish three-piece suite comprising a corner-enclosed shower with a chrome rainfall shower head and handheld attachment, a hand wash basin with chrome mixer tap set within a white vanity unit, and a low-level WC. The shower enclosure is panelled complemented by decorative panelling to the remainder of the room. Further benefits include a radiator, wood-effect flooring, and a frosted window to the rear elevation providing natural light while maintaining privacy.
Externally
Externally, the property is approached via a pathway set within neatly maintained lawns, providing access to both the main entrance and the rear garden. To the side, a driveway leads to a garage with an up-and-over door. The rear garden has been thoughtfully designed for low maintenance, featuring a patio area, decorative gravel, and a decking space—ideal for outdoor seating and entertaining.
Garage
Accessed via the up and over door and a door to the side. There is a car pit and two windows to the side elevation.
Are you looking at buying, selling or just remortgaging through us? JH financial are with you every step of the way. We know how overwhelming and confusing the mortgage process can be. We offer flexible mortgage advice appointments as well as access to thousands of mortgage lenders. Book an appointment with one of our advisors using the button below.

Jordan Halstead
CEO
Arrange a viewing