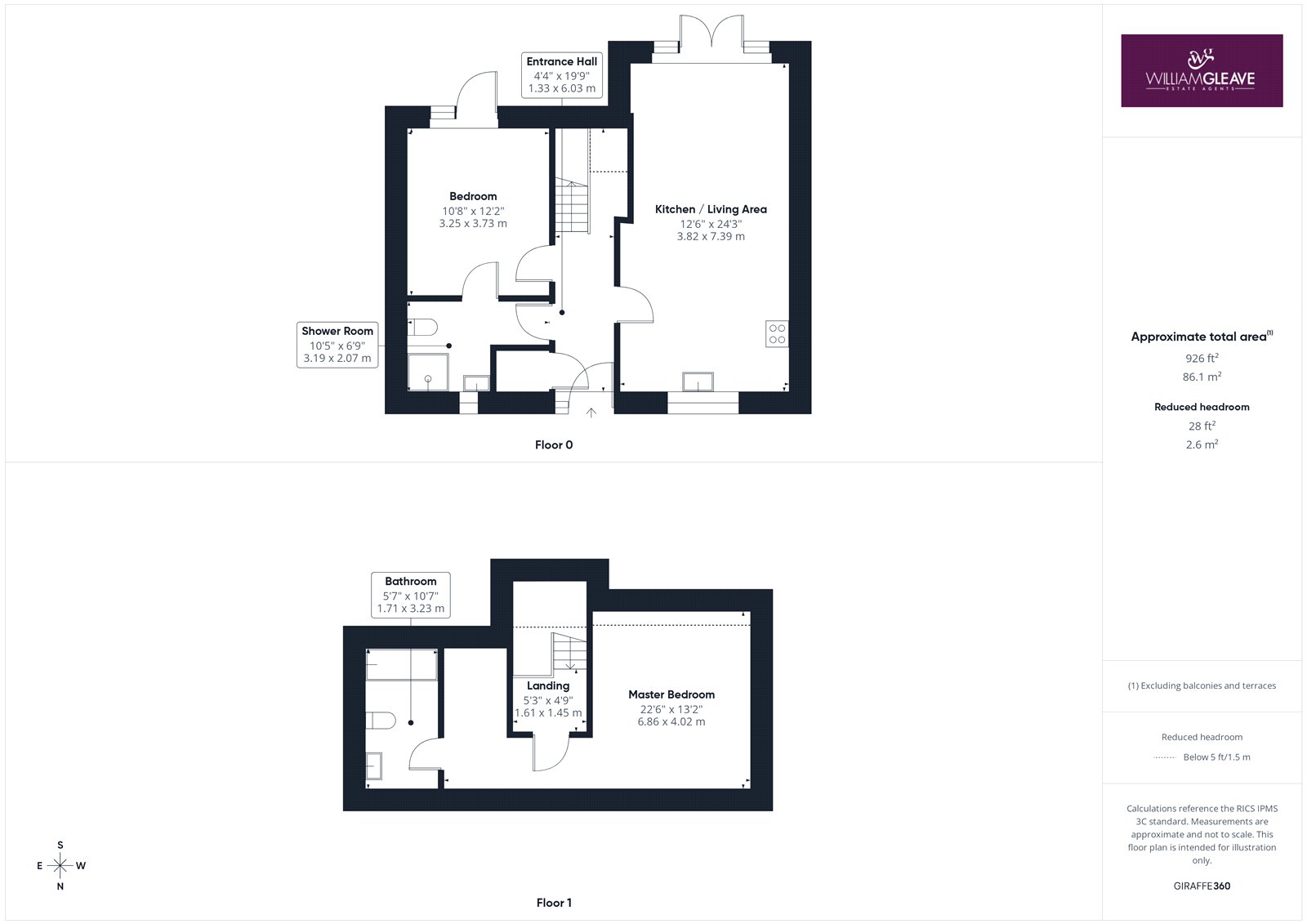
Entrance Hall
Stepping through the composite front door with frosted side panel, you are welcomed into a bright hallway giving access to the main living spaces and the downstairs shower room. The hallway also features a useful storage cupboard, power points, and a staircase rising to the first floor, creating a practical and well-organised entrance to the home.
Living/ Dining Area
The open-plan living and dining area features triple-glazed patio doors with matching side panels that flood the space with natural light and open directly onto the rear garden. The room is finished with modern laminate flooring and benefits from underfloor heating, multiple power points, and a TV point, creating a comfortable and versatile space ideal for everyday living and entertaining.
Kitchen Area
The kitchen area is fitted with a modern range of wall and base units, complemented by a matching quartz worktop. It includes an inset one-and-a-half sink with mixer tap and a selection of integrated appliances such as a fridge-freezer, dishwasher, induction hob with stainless steel extractor hood, and an electric oven, along with a fitted washing machine. The underfloor heating continues through this space, and a triple-glazed window to the front elevation provides plenty of natural light, with ample power points for convenience.
Shower Room
The downstairs shower room is fitted with a low-level WC, a pedestal wash hand basin with mixer tap, and a separate shower cubicle with a mains-powered shower. The space features partially tiled walls for easy maintenance and a frosted triple-glazed window providing natural light and privacy.
Bedroom
This spacious double bedroom features triple-glazed patio doors with matching side panels and an additional window, all opening directly onto the rear garden and filling the room with natural light. The bedroom benefits from Jack-and-Jill access to the shower room, offering added convenience and flexibility. The space is finished with carpet flooring, a TV point, and ample power points, creating a comfortable and practical room suitable for a variety of uses.
Landing
The landing provides access to the first-floor bedroom and features a skylight that brings in natural light. The space includes a radiator and convenient power points, creating a bright and practical area connecting the upper level of the home.
Bedroom
This generous double bedroom features two skylight windows that brighten the space and create an airy, welcoming atmosphere. The room includes a radiator, carpet flooring, a TV point, and multiple power points for convenience. With ample space for essential bedroom furnishings and a double bed, it offers a comfortable and versatile layout ideal for everyday living.
Walk-In Wardrobe Space
The main bedroom also benefits from an additional versatile space, ideal for use as a home office, dressing area, or walk-in wardrobe. This useful area includes a radiator, power points, and a door leading directly into the bathroom, adding both practicality and flexibility to the room’s layout.
Bathroom
The bathroom is fitted with a low-level WC, a pedestal wash hand basin with mixer tap and tiled splashback, along with a panelled bath featuring a glass shower screen, mixer tap, and a mains-powered wall-mounted shower. The room is finished with LVT flooring, a heated towel rail, and a skylight.
Externally
To the front of the property, off-road parking is provided and a patio-slab path bordered by gravel and finished with iron railings, leads up to the front door. A pathway continues down the side of the home to a wooden gate that offers access to the rear garden. The south-facing rear garden is designed for low maintenance, featuring a spacious patio area ideal for outdoor furniture and relaxing in the sun. There is also a section laid with bark, home to mature shrubs and plants. The garden is fully enclosed with wooden fencing, ensuring a good degree of privacy.
Are you looking at buying, selling or just remortgaging through us? JH financial are with you every step of the way. We know how overwhelming and confusing the mortgage process can be. We offer flexible mortgage advice appointments as well as access to thousands of mortgage lenders. Book an appointment with one of our advisors using the button below.

Jordan Halstead
CEO
Arrange a viewing